8 800 201-28-64
+7 921 097-28-64
Задать вопрос
callback_icon
Обратный звонок
Меню
Главная
Технология
ПРОЕКТЫ
СТОИМОСТЬ
Фасад
ГАЛЕРЕЯ
Видео
Контакты
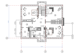
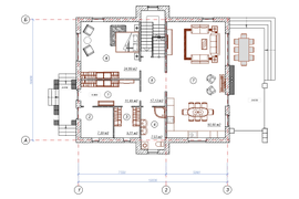
МОНБЛАН 239 м2