8 800 201-28-64
+7 921 097-28-64
Telegram
Задать вопрос
callback_icon
Обратный звонок
Меню
Главная
О компании
Технология
Проекты
ПОСТРОЕННЫЕ ДОМА
Контакты
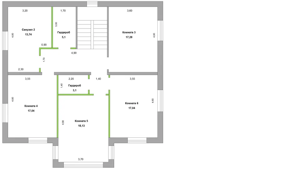
А2 220 м2