Проект дома ЭЛЬБРУС 238

Уникальный одноэтажный дом с антресолью общей площадью 238 м², созданный для ценителей нестандартных решений. Главная особенность проекта — грандиозное пространство кухни-гостиной с вторым светом и панорамным окном, где высота потолков достигает 6,7 метра. Над входной группой расположена антресоль со стеклянной перегородкой — универсальное пространство, которое можно использовать по вашему желанию: в нашем проекте здесь размещены небольшой спортзал и кабинет.

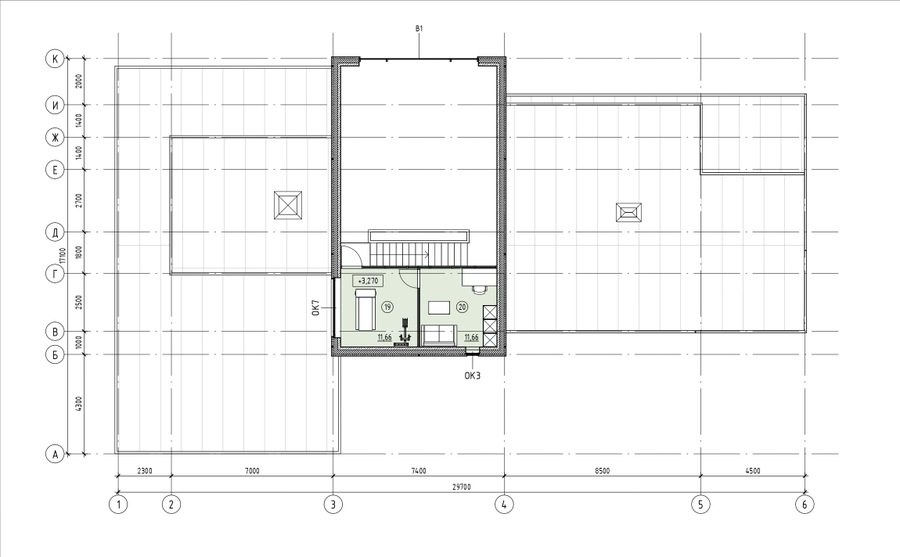
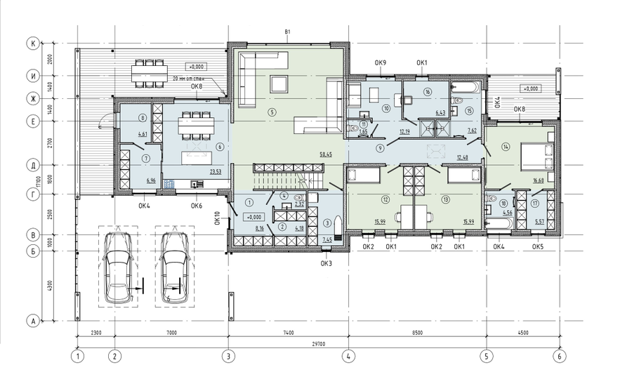
Планировка (одноэтажная с антресолью):

Основной уровень:


  • Просторная кухня-гостиная с панорамным остеклением и вторым светом — настоящее «сердце дома», залитое светом и воздухом.

    Мастер-спальня с собственной гардеробной и санузлом.

  • Две дополнительные спальни — для детей или гостей.

  • СПА-зона с сауной и зоной отдыха — для релаксации и восстановления.

  • Постирочная — комфортное пространство для стирки и сушки.

  • Большая общая гардеробная — для хранения вещей всей семьи.

  • Кладовая при кухне — удобное место для запасов.

  • Котельная с отдельным выходом на улицу — безопасность и удобство обслуживания.

  • Прихожая, холл, санузлы — всё необходимое для комфортной жизни.


  • Мастер-спальня 11,56 м² с собственной гардеробной 10,56 м² и санузлом 12,30 м².
  • 2 детские спальни по 19,54 м² — просторные комнаты для детей.
  • Второй санузел 5,00 м² и помещение под санузел или постирочную 5,00 м².
  • Дополнительно: навес на 2 авто (48,00 м²) и терраса (24,70 м²).

Антресоль (второй свет):

Универсальное пространство со стеклянной перегородкой, выходящее в гостиную. В нашем проекте здесь предусмотрены спортзал и кабинет, но вы можете использовать эту зону под любые задачи: хобби-комнату, библиотеку, детскую игровую или творческую мастерскую.


Дополнительно:

Терраса и крыльцо.




Конструктив:


  • Фундамент: утеплённая монолитная железобетонная плита с системой дренажа.

  • Стены: трёхслойные наружные стеновые панели: несущий железобетонный слой, утеплитель ЭППС, наружный железобетонный слой.

  • Перекрытие: пустотные плиты перекрытия (технология ПБ).

  • Крыша: плоская кровля.



Комплектации и стоимость:


"Базовая комплектация":

Фундамент + домокомплект (изготовление, доставка, монтаж) + кровля.
от

"Тёплый контур" (минимальные требования для льготной ипотеки):

«Базовая комплектация» + окна и входная дверь + внутренние перегородки
от

"Черновая отделка":

«Тёплый контур» + разводка основных инженерных систем (отопление, электроснабжение, водоснабжение, канализация) + полусухая стяжка.
от


Ключевые особенности:


  • Второй свет в гостиной: высота потолков 6,7 м и панорамное окно создают неповторимую атмосферу простора и света.

  • Универсальная антресоль: дополнительное пространство со стеклянной перегородкой — идеально под любые цели (спортзал, кабинет, творческая студия).

  • Полноценная инфраструктура: мастер-спальня, две спальни, СПА-зона с сауной, постирочная, большая гардеробная, кладовая и отдельная котельная с выходом на улицу.

  • Энергоэффективность: трёхслойные стеновые панели с утеплением ЭППС минимизируют затраты на отопление.

  • Скорость и надёжность: строительство из готовых железобетонных конструкций заводского качества.

  • Возможность льготной ипотеки при выборе комплектации «Тёплый контур».



Свяжитесь с нами!

Для расчёта индивидуального предложения и консультации по проекту.

Удалить товар

Вы точно хотите удалить выбранный товар? Отменить данное действие будет невозможно.